桂林廉政教育基地,室内布展面积1443㎡(一楼展厅面积494㎡;二楼展厅面积433㎡;三楼展厅面积428㎡);桂林市廉政教育基地将成为桂林市党员干部党风教育基地、党史学习中心,及面向大众的爱国主义教育基地.
桂林市廉政教育基地的四个维度(展馆主线)
历史深度——文化自信
全球广度——制度自信
时代高度——道路自信
桂林角度——城市自信
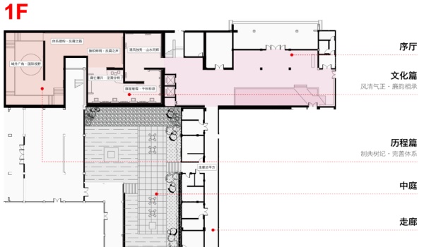
序厅
序厅是整馆的名片,亦是观众对展馆的第一印象。
设计利用空间两个立柱,书写对联“丹桂抒廉意、儒林传清风”为展示开场。顶部以LED彩幕展开一副淡雅清新的水墨画,与馆名墙前开满莲花的清秀水景相互呼应,营造出一种清雅、正气的展厅氛围。主题墙上连绵起伏、若隐若现的桂林山峰,在水池中形成倒映影像,以“山清水正”寓意“风清气正”,彰显出桂林以及桂林人性格中的”清正、直率、坚韧、自信“。
诗意廉乡&廉韵悠长
“一方水土,养育一方人”,自古以来,桂林水的清、山的正成为人们廉洁正直的精神家园和灵魂寄托。我们在漫长的历史长河中,采撷各个历史时期的闪光人物,以他们的诗文描绘出一派诗意廉乡的风采;我们选取颜延之、戎昱、陈继昌、吴迈等历朝历代名臣、廉吏的诗文以及实物著作等,传达出桂林一脉相承的廉洁文化。
廉洁印记
自古以来,桂林水的清、山的正成为人们廉洁正直的精神家园和灵魂寄托。接下来的廉洁印记展区,我们利用浮雕、影片等手段,将“灵渠”、“百年清官村”等桂林廉洁文化地标梳理成一个个清晰的廉洁印记,标注在观众的眼中、心中。
群星璀璨·千秋称颂——步步生莲&廉洁大道
桂林的清风廉韵孕育出一大批璀璨的廉洁名人,千秋万世为世人称颂。包拯“前世”—周谓、理学鼻祖—周敦颐、爱憎分明—梅挚、宠辱不惊—张孝祥……等人物或生长在这里、或曾停留在这里,但依然将自己的清廉人生书写在这片土地上,汇聚成一条清廉为政的光明大道,指引着后人的方向。
当观众徐徐走过雕塑长廊,动感地投装置将在观众脚下绽放出一朵朵盛开的莲花,象征着清廉人生的光荣。
时代强音
正气、丰富的展区内,通过图文详细展现出“八项规定“、纠正”四种作风”、推进“三严三实”、”群众路线“、”两个责任“、、“忠诚是第一位的要求”……等思想的结晶,它们不仅是制度建设的新发展,亦是坚守信仰,推进依法治国的时代最强音!
警钟长鸣-感应式艺术装置
展区中央,一个斜扣的巨型铜钟不时发出沉重的鸣响。当观众走近钟的内部,会看到投影营造的“风暴眼“将许许多多贪官的名字卷入风暴的中心,直至消失。艺术化的表现手段,带给观众强烈的内心震撼。
创意展项-“不要迈出第一步”
四周墙面上,观众将看到“猛药去疴、重典治乱”的决心下、在“老虎苍蝇一起打”的战略指引下、贪官污吏无所遁形,他们身败名裂的结局已不可重来。观众在警醒之余,内心受到巨大的触动,进而产生“不敢腐”的强烈震慑作用。对于腐败案例教育点的深度挖掘,不仅起到良好的教育作用,也让案件真正成为政策的发声筒。
照镜正身-情感体验空间
绕过一面墙,观众来到一个三面围合式的空间内,两侧墙面展出贪腐赃物,而正面墙面则写满倒置的文字,当观众转身,即看到身后是一面顶天立地的镜子,在镜子中,文字变成正面,观众看到自己,也辨认出文字内容—“为政之道、腐亡廉兴”、“心有所畏、行有所止”、“为民、务实、清廉”等。独特的创意展区,用一种无声的方式,传递着深刻的涵义。
人生是否能重来-剧场化演绎体验空间
继续向前,观众来到一个围合式的展区。一个巨大的生命时钟悬挂在顶部,刻度代表着一个人的一生。随着指针的走动,墙面的投影将展现出一名党员的腐化堕落史——“少年入队“—”青年入党“—”中年得到提拔“—”逐渐腐化堕落“—”走向身败名裂“,当时针走到最后一个阶段,顶部的投影在地面上打出一行大字:”人生是否能重来?“,随之表针开始逆时针转动,观众在投影画面上看到腐化官员一步步回到从前,直至回到一位面对国旗行少先队礼的少年脸上。剧场化演绎的方式,提醒观众一个现实的答案: ”电影可以倒带,但人生却不能重来!“
贪廉一念间、荣辱两世界—心理置换对比空间
案例区的尽头,在算好人生七笔账对面,观众将看到一面铁笼,抽象的城市窗口渐次亮起,通过巧妙地心理置换,鲜明而强烈地告诫人们,一念之间的贪腐不仅危害国家、也会对人生造成难以弥补的伤害。

革命纪念馆不仅是存放革命文物的场所,更是传承红色基因、弘扬革命精神的重要载体。其设计需以 “历史真实性” 为根基,以 “情感共鸣” 为核心,通过空间布局、展陈手法、技术融合,将抽象的革命历史转化为可感知、可体验的场景,引导参观者在沉浸式体验中回望历史、感悟精神,让红色记忆真正扎根人心。

在中国浩瀚的历史长河中,瓷器以其独特的艺术魅力和精湛的工艺技术,成为了中华文明的重要象征之一。而在众多瓷器种类中,上虞越窑青瓷以其温润如玉的釉色、简约流畅的造型以及深厚的历史文化底蕴,独树一帜,成为了中国瓷器文化中的瑰宝。从东汉中晚期至五代时期,上虞越窑青瓷经历了从创烧、鼎盛到低落、复兴的曲折历程,见证了中华民族悠久历史和灿烂文化的变迁。本文旨在通过深入探索上虞越窑青瓷的发展历程、技艺特点以及文化内涵,展现其独特的艺术魅力和历史价值,同时展望其未来的传承与创新之路。

台江的上杭路和下杭路及其附近街区,俗称“双杭”。指的是从小桥头到大庙路之间的两条平行的横街,这里早年是福州的商业中心和航运码头。“杭”其实是从“航”音衍化的,这里有一个地理变迁的历史过程。古时闽江水绕过大庙山,上下杭便是上下航的津口埠头。这片曾经以商业的繁华而闻名的古老街区,一直以来是民俗、史学专家们研究福州商业发展历程的重要地方。

当“乡村振兴”战略与“双碳”目标在华夏大地交织成网,美丽乡村展示便成为丈量时代进步的活态标尺。它既非静态的文物陈列室,亦非简单的成果展览馆,而是承载着当下中国乡村从“生态修复”向“价值重塑”跃升的立体镜像——在政策引领与基层创新的双重驱动下,乡村建设正经历着从“环境整治”到“全域振兴”的质变,而展示中心正是这一转型过程的动态叙事场域与精神原乡。

九江,这座镶嵌在长江之畔的璀璨明珠,自古以来便以其独特的地理位置和丰富的历史文化而著称。然而,在1998年的那个夏天,九江却经历了一场前所未有的考验——特大洪水。这场洪水不仅考验了九江人民的勇气和智慧,更孕育出了一种伟大的精神——抗洪精神。为了铭记这段历史,传承这种精神,九江九八抗洪展陈馆应运而生。

进入展馆,观众首先进入前厅部分。前厅是功能区的一部分和参观的准备区。前厅两侧均匀分布山川水墨画,与古井贡酒产品蕴含的清新淡雅之风相得益彰,使观众对古井贡酒的产品有一个初步的认识。参观观众向右进入展馆进行参观。

在2024年11月6日这个金秋送爽的日子里,上海这座国际大都市再次迎来了全球瞩目的盛事——第七届中国国际进口博览会(以下简称“进博会”)。作为世界上首个以进口为主题的国家级展会,进博会不仅是中国对外开放的重要窗口,更是全球企业展示创新成果、拓展国际市场的绝佳平台。在本届进博会上,资生堂,这一享誉全球的美妆巨头,连续第六年参展,并以一个全新的面貌——“资创园”,惊艳亮相6.1号消费品馆,为全球观众带来了一场关于美的盛宴。

红色展馆的设计不仅是技术与艺术的结合,更是历史与情感的交融。运用好设计巧思,可以让红色展馆成为一座生动的历史课堂、一座情感的共鸣之所。在数字化与创意并进的今天,如何打造出吸引观众、触动心灵、还原历史的红色场馆?成为时代的命题。

引言——体育强则中国强,国运兴则体育兴“体育是提高人民健康水平的重要途径,是满足人民群众对美好生活向往、促进人的全面发展的重要手段,是促进经济社会发展的重要动力,是展示国家文化软实力的重要平台。”实现体育强国目标,要大力弘扬新时代的女排精神,把体育健身同人民健康结合起来,把弘扬中华体育精神同坚定文化自信结合起来,坚持举国体制和市场机制相结合,不忘初心,持之以恒,努力开创新时代我国体育事业新局面。新中国成立以来,广东体育健儿已累计夺得40多项奥运冠军,400多枚亚运金牌,1000多项世界冠军,精彩诠释了中华体育精神和奥林匹克精神的深刻内涵。